Модульный коллектор нержавеющий с термоизоляцией MKSS-60-5DU, Gidruss
Код: MK 60A4T 20
39 600 сом
Наличие на центральном складе: 1 (обновлено 04.05.2026 09:09)
Категории
MKSS-60-5DU
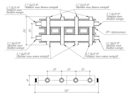
Энергоэффективный нержавеющий коллектор отопления на 5 контуров DN25 в конфигурации 2+2+1 предназначен для подключения к настенному котлу радиаторов и теплого пола с размещением удобного гидроузла в котельной частного дома или в ИТП. Так же с помощью данного коллектора можно удобно трассировать магистраль dn25 одного контура, например с горизонтального участка магистрали распределить на 2 ветки вверх и 2 ветки вниз.
Как правильно установить и подключить коллектор к системе отопления ?
- Коллектор можно устанавливать в любом положении, но для снижения вероятности завоздушивания коллекторные балки желательно располагать горизонтально.
- Котел можно подключить в любой свободный контур с любой стороны, подающая линия может располагаться как сверху так и снизу.
- Для удобного подключения и эксплуатации потребителей используйте насосные группы dn25.
Характеристики
|
Материал исполнения:
|
Нержавеющая сталь AISI 304
|
|
Количество контуров:
|
5
|
|
Максимальная подача, м³/ч:
|
2,6
|
|
Мощность максимальная, кВт:
|
60
|
|
Максимальная отапливаемая площадь, м²:
|
500
|
|
Магистральное присоединение:
|
G 1″ (НР)
|
|
Подключения потребителей:
|
G 1″ (НР)
|
|
Межосевое расстояние, мм:
|
125
|
|
Вылет от стены, мм:
|
75-105
|
|
Размеры упаковки, (Д x Ш х В), мм:
|
90 x 690 x 270
|
|
Объем упаковки, м³:
|
0.01677
|
|
Длина, мм:
|
690
|
|
Ширина, мм:
|
270
|
|
Высота, мм:
|
90
|


